Home > Tekenwerk

Brandveilig Gebruik

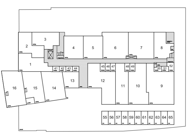
Vastgoed-plattegronden.nl verzorgt duidelijke en conform de actuele wet- en regelgeving  brandveiligheids- plattegronden waarop alle noodzakelijke voorzieningen zijn weergegeven. Deze tekeningen vormen een essentieel onderdeel van de melding brandveilig gebruik en sluiten naadloos aan op uw brandveiligheidsplan.

Elke situatie is anders. Daarom bieden wij maatwerkoplossingen afgestemd op uw gebouw en het gebruik ervan. In een persoonlijk gesprek brengen we de situatie in kaart en adviseren we u over de juiste aanpak.

Evenementenvergunning

Organiseer je een openbaar evenement, zoals een bedrijfsfeest, beurs of muziekfestival? Dan is een evenementenvergunning vaak verplicht. Een belangrijk onderdeel van deze aanvraag is een duidelijke situatietekening. Hierop staat de indeling van het terrein, zoals tenten, podia, kramen, EHBO-posten en nooduitgangen. De gemeente en hulpdiensten gebruiken de tekening om de veiligheid en toegankelijkheid te beoordelen. Bij grotere evenementen maakt de situatietekening bovendien deel uit van het veiligheidsplan, inclusief risicoanalyse en draaiboek.

Vastgoed-Plattegronden.nl levert professionele situatietekeningen die voldoen aan alle eisen voor een veilige en succesvolle vergunningsaanvraag.

Omgevingsvergunning

Bij het aanvragen van een omgevingsvergunning is goed en volledig tekenwerk essentieel. Wij leveren professionele tekeningen die voldoen aan de eisen van het Omgevingsloket en de lokale regelgeving. Denk hierbij aan situatietekeningen, plattegronden, gevelaanzichten en doorsneden in de juiste schaal en opmaak. Wij zorgen ervoor dat uw tekeningen helder, technisch correct en geschikt zijn voor een soepele beoordeling door de omgevingsdienst. Onze tekeningen vormen een betrouwbare basis voor een vergunningsaanvraag.

Verkooptekeningen

Voor de verkoop van een woning zijn duidelijke en aantrekkelijke verkooptekeningen onmisbaar. Wij maken professionele verkooptekeningen die potentiële kopers direct een goed beeld geven van de indeling en mogelijkheden. De lay-out kan desgewenst in uw eigen huisstijl worden opgemaakt.

We hebben ruime ervaring met het uitwerken van verkooptekeningen. We denken graag met u mee over de beste presentatie en mogelijkheden. Vraag gerust een vrijblijvende toelichting aan over onze werkwijze en hoe wij u kunnen helpen bij de verkoop van uw vastgoed.

Splitsingstekeningen

Bij de bouw van een wooncomplex met meerdere eigenaren is een splitsingstekening vereist. Deze tekening vormt onderdeel van de splitsingsakte en geeft exact de grenzen aan tussen de individuele appartementen en de gemeenschappelijke ruimten. De splitsingstekening is essentieel voor de juridische vastlegging in het kadaster.

Wij zorgen voor nauwkeurige en correcte splitsingstekeningen. Dankzij onze ervaring en kennis van de kadastereisen bent u verzekerd van een vlekkeloos proces. Neem contact op voor meer informatie of een persoonlijke toelichting op onze aanpak.

Veelgestelde vragen

Lorem ipsum dolor sit amet, consectetur adipiscing elit. Ut elit tellus, luctus nec ullamcorper mattis, pulvinar dapibus leo.

Lorem ipsum dolor sit amet, consectetur adipiscing elit. Ut elit tellus, luctus nec ullamcorper mattis, pulvinar dapibus leo.

Lorem ipsum dolor sit amet, consectetur adipiscing elit. Ut elit tellus, luctus nec ullamcorper mattis, pulvinar dapibus leo.